3
$789,900 Sale
Listed 7 hours ago
63 HARMONY WAY
· 3
· 3.5
· 2
· 1500 - 2000
Key Facts
Key facts for 63 HARMONY WAY
Property Type
Townhome, Row / Townhouse
Parking
Garage: Yes, 2 parking
MLS #
X12462298
Size
1500 - 2000 sqft
Basement
Unfinished, Full (Unfinished)
Listed on
-
Lot size
-
Tax
-
Days on Market
-
Year Built
-
Maintenance Fee
-
Description
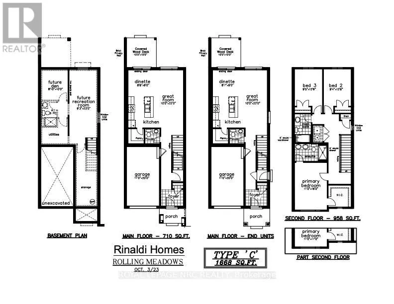
Spacious 1668 sq ft new two-storey end unit freehold townhome with convenient side door entry to basement for future in-law Suite potential. Now under construction in the Rolling Meadows master planned community. Features 9 foot main floor ceilingHeight, 3 bedrooms, 2.5 bath and 2 nd floor laundry. ...Kitchen features 37 tall upper cabinets, soft close cabinet doors & drawers,Crown moulding, valence trim, island, walk-in pantry, stainless steel chimney hood and 4 pot lights. Smooth drywalled ceilingThroughout, 12x24 tile flooring, 6 wide plan engineered hardwood flooring in the main floor hall/kitchen/great room.Spacious primary bedroom with large walk-in closet and ensuite with double sinks and 5 acrylic shower. Unfinished basementwith plenty of room for future in-law suite. Includes 3pce rough-in for future basement bathroom, one 47x36 egress basementwindow, drain for future basement bar or kitchen sink. Central air, tankless water heater, Eco-bee programmable thermostat,automatic garage door opener, 10x10 pressure treated wood rear covered rear deck and interlocking brick driveway. Only a short drive from all amenities including copious restaurants, shopping, Niagara on the Lake & one of the 7 wonders of the world Niagara Falls. Easy access to the QEW. Listing price is based on the builders discounted pricing and includes a limited timeoffer of a $5000 Leons voucher. As low as 2.99% mortgage financing is available. See sales representative for full details. Buy now and get to pick all your interior finishes! Built by national aware winning builder Rinaldi Homes. (id:10452)
Similar Properties (No results)
Room Types
Bedroom
-
Dimensions 2.84 m x 3.81 m
116.47 sqft
Bedroom
-
Dimensions 2.87 m x 3.81 m
117.7 sqft
Dining room
-
Dimensions 2.59 m x 2.74 m
76.39 sqft
Listing courtesy of: ROYAL LEPAGE NRC REALTY
This REALTOR.ca listing content is owned and licensed by REALTOR® members of The Canadian Real Estate Association.